Saltar al contenido.
Mainel Arquitectura SL
Activar/desactivar barra lateral
13 octubre, 2017
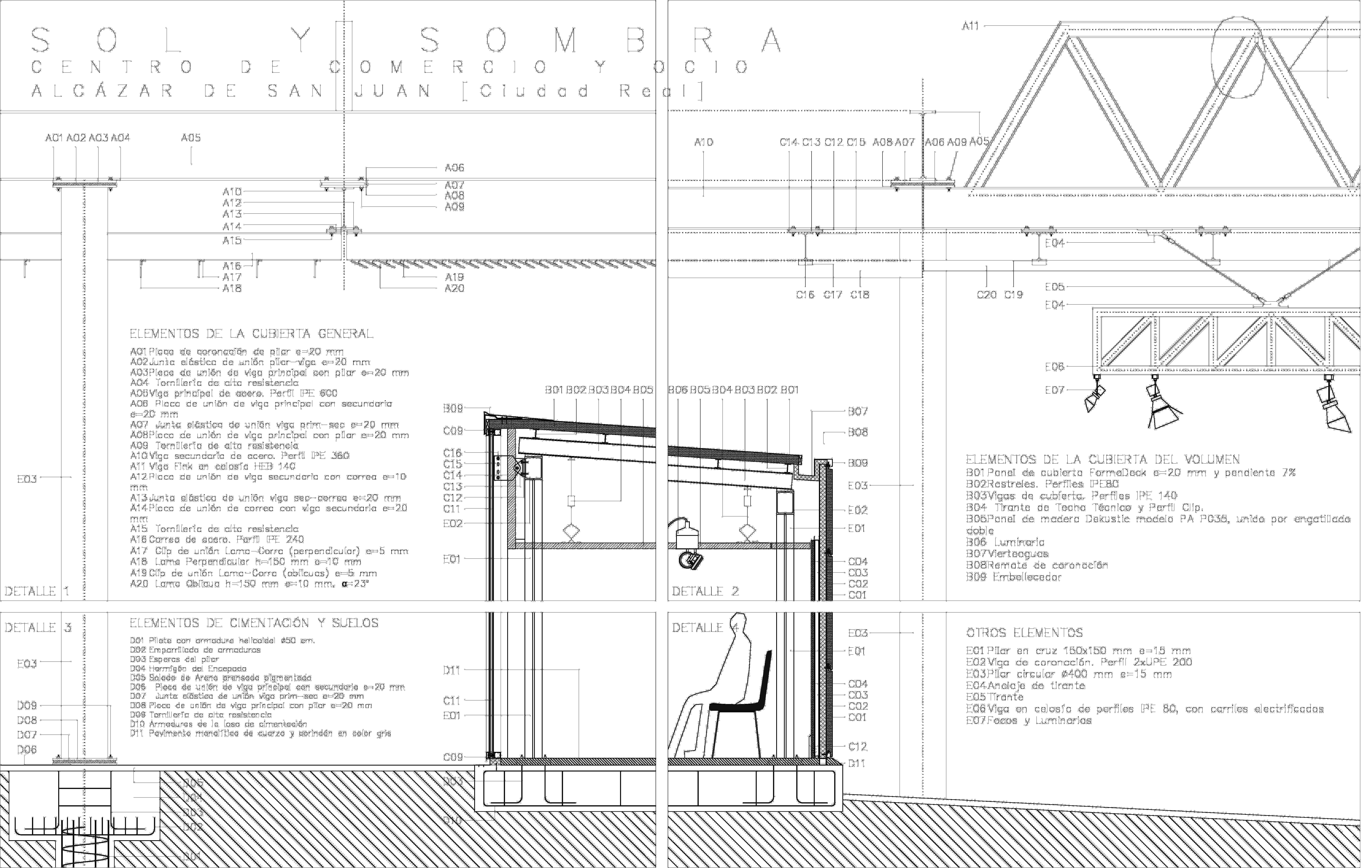
C:UsersElenaDropboxALCAZAR DE SAN JUANDWGLAMINAS4.07.deta
Deja un comentario
Cancelar la respuesta
Δ
Navegador de artículos
←
Centro de comercio y ocio en Alcázar de San Juan
Comentar
Suscribirse
Suscrito
Mainel Arquitectura SL
Suscríbeme
¿Ya tienes una cuenta de WordPress.com?
Inicia sesión
.
Mainel Arquitectura SL
Suscribirse
Suscrito
Regístrate
Iniciar sesión
Copiar enlace corto
Denunciar este contenido
Ver la entrada en el Lector
Gestionar las suscripciones
Contraer esta barra